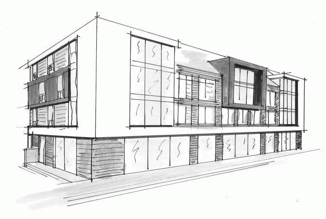
Elbgaustrasse
Fertigstellung: 2010
Auftragsumfang: LP 1-8 Architektenleistungen
Neubau: Wohn-und Geschäftsgebäude, 12 Wohneinheiten und 4 Läden im EG, mit Tiefgarage
Bauherr: Celik Bauträger GmbH
Bauzeit: 2009-2010
BGF: 2.000,00 m²
Grundstück: 625,00 m²









